г.Минск, ул.Р.Люксембург, 205
(Пн-Чт)08.30-17.30;(Пт)8.30-16.15
+375(17)209 87 00, +375(29)151 87 00
Реализация квартир: +375 (17) 209-87-32

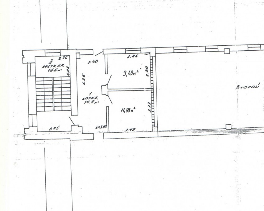
Встроенные помещения общей площадью 36,2 м2. ул. Пономаренко,35

Встроенные помещения общей площадью 36,2 м2. ул. Пономаренко,35

Общая площадь, м2: 36,2 Предлагаемое целевое использование: Арендная плата:326,15 руб. Описание:

Встроенные помещения общей площадью 36,2 м2.

Примечание:

ул. Пономаренко,35  Сдаются в аренду встроенные помещения общей площадью 36,2 м2. Размещены на 3-м этаже здания, столовой  ОАО «МАПИД», имеет отдельный вход, отопление, естественное освещение, электричество, юридический адрес, государственная собственность, оживлённое место, парковка, подъездные пути, охрана. требуется косметический ремонт.

Общая сумма в месяц за аренду составит 543,58 руб. Стоимость за 1м2 - 15,02 руб.  При применении понижающего коэффициента арендная плата в месяц составляет 326,15 руб. (за 1 м2 - 9,01руб.)

Контактный телефон: +37544-532-04-94 (velcom), +375 17 348-88-40 (город)