Микрорайон
02
фев

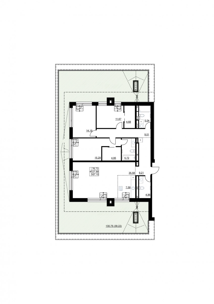
Микрорайон "Сонечный". Жилой дом 1.6 по генплану

Микрорайон «Сонечный» —уникальный современный жилой комплекс комфорт-класса всего в километре от МКАД.  Построены и заселены пять домов по улице Широкой в посёлке Сонечном. Сегодня ОАО «МАПИД» ведет строительство жилого дома№1.6 по г/п. Начало строительства– 02 декабря 2024 г., предполагаемый ввод дома в эксплуатацию – 30 июня 2026 г. Дом относится к домам повышенной комфортности (в соответствии с п 15.2 Указа Президента РБ №667).

Квартиры реализовываются посредством заключения договоров долевого строительства, стоимость одного квадратного метра – от 5300 руб. (в стоимость входит машино-место в паркинге на первом этаже и кладовая). Рассрочка в рублях до конца строительства (до 30 июня 2026 г.) первоначальный взнос 40% в течение 10 банковских дней с момента регистрации договора.

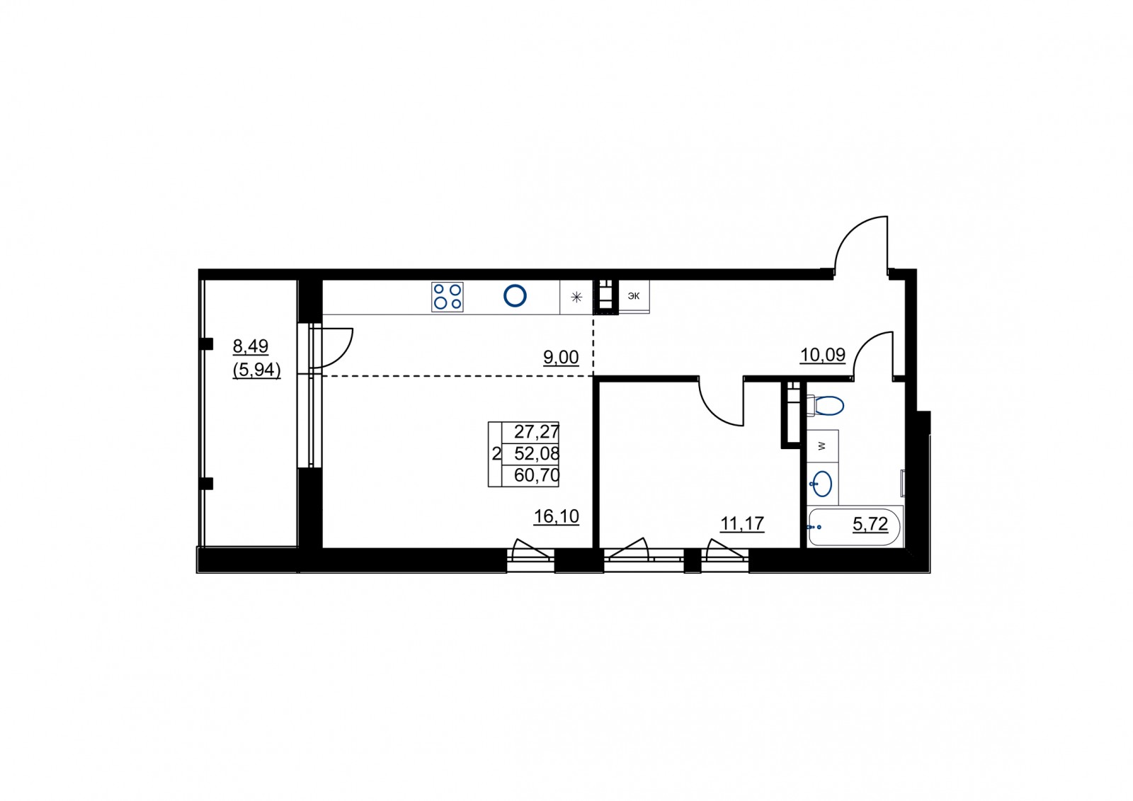
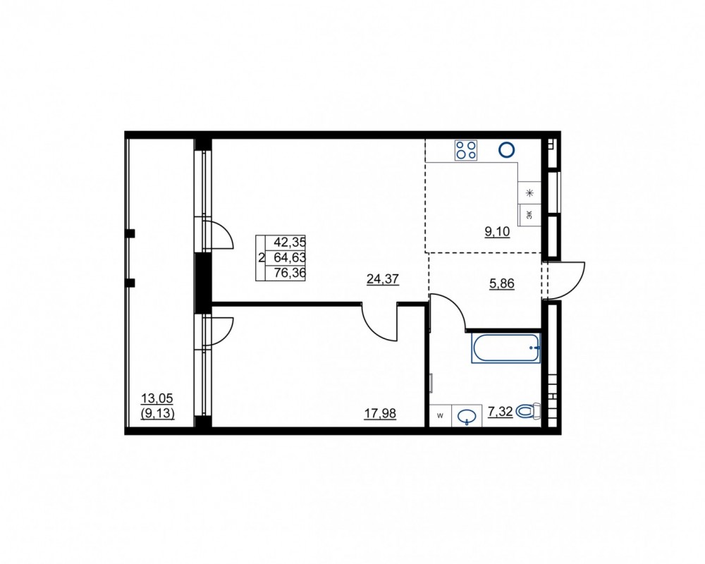
Стоимость 1 кв. м:

- однокомнатные 5 600 руб/кв м
- двухкомнатные 5 500 руб/кв м
- трехкомнатные 5 400 руб/кв м
- пентхаус 5 300 руб/кв м

Прием заявлений осуществляется отделом реализации недвижимости ОАО «МАПИД» (г. Минск, пр. Жукова, 6, кабинет №1), понедельник-четверг с 9.00 до 17.00, обед с 12.45 до 13.30, в пятницу с 9.00 до 15.00, обед с 12.45 до 13.30, кроме выходных и праздничных дней. Телефоны для справки:209-87-32, 209-87-52

Жилье предлагается без отделки, но качество поверхностей таково, что не потребует дополнительных усилий от новоселов — это плюсы современных технологий от ОАО «МАПИД».

-для каждой квартиры предусмотрено парковочное место в цоколе;
- дополнительно каждой квартире холодная кладовая;
- поквартирная система рекуперации;
- индивидуальные электрические котлы;
- высота потолков 2,88 метра;
- выполнена разводка электрики и сантехники;
- кухни объединены с гостиными.

Дом посажен на стилобат, состоит из двух секций, между которыми размещается закрытый двор с детской площадкой и местами для отдыха, территория стилобата ограждена.

Предложение от ОАО «МАПИД» это «солнечный» вариант для жизни: дворы без машин, малоэтажная, приятная глазу застройка, пешеходный бульвар и тихие кафешки, ассоциируемые больше с удобствами загородной жизни - маленькая Европа, а столица — рукой подать.

Проектная декларация